Request a Quote





Message / Order details:
Sending...


Tel. 416.751.5033
Fax. 416.751.0074
Since 1950

Services

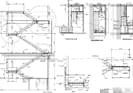
3D Modeling and Drafting

When looking for 3D modeling assistance, our structural steel fabricators in Toronto are ready to help, and will service your needs across Ontario. All detailing and drafting work is done in-house using the latest, most advanced steel detailing programs. We are one of the first steel fabricators in Canada to have adopted Tekla Structures solid modeling software to model, draw and track our work. Tekla Models can incorporate, concrete, wood, glass, mechanical components and equipment that interact with and typically interfere with steel structures. Tekla Structures is Building Information Modeling (BIM) software that enables the creation and management of accurately detailed, highly constructible 3D structural models regardless of material or structural complexity. This highly improves the ability of our structural steel fabricators within Toronto and other high-population areas. Our 3-D Tekla models can be used to cover the entire building process from conceptual design to structural steel fabrication, erection and construction management. This ensures that we provide accurate and complete information to all members of the construction team. Careful precision of on-site layout and calculations are made prior to steel fabrication to ensure ease and timely installation on site. This process ensures we remain one of the most reliable structural steel fabricators Toronto and the surrounding area have access to.